2026. április 29. 14:11
Gyereknap Budaváron
2026. május 31. – 10:00 Színpadi programok: 10:00 „Virágos Pünkösd” -gyermekjáték fűzés és néptánc – Brunszvik Teréz Budavári Óvodák...
Tovább olvasom
2025. október 30. 13:28

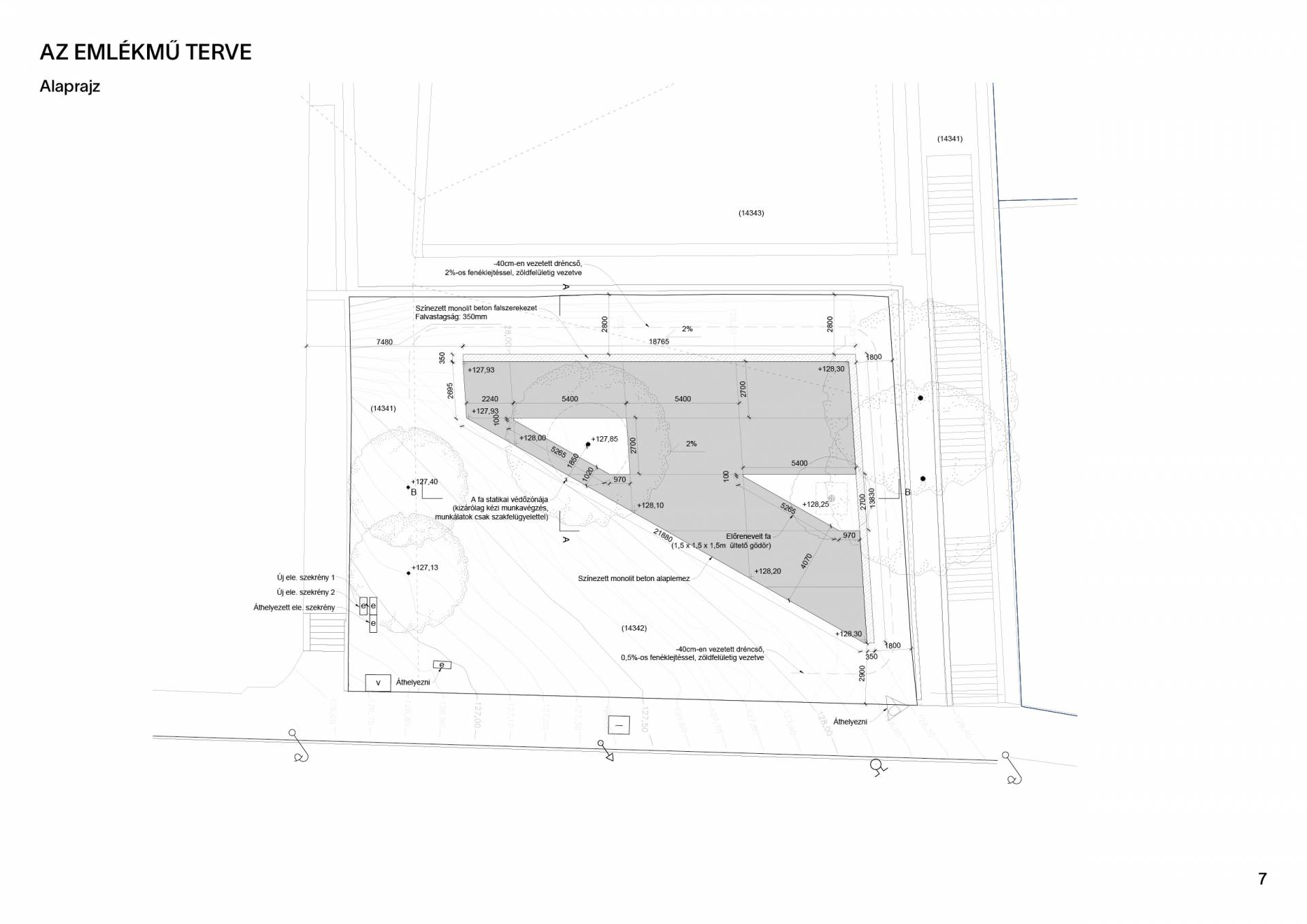
Elérhetőek a Háborúkban Megerőszakolt Nők Emlékezetének szentelt emlékmű látványtervei, amelyet az I. kerületi Hunyadi János utcában terveznek felállítani.
A Fővárosi Közgyűlés még 2019-es alakuló ülésén határozott a méltó megemlékezésről, a projekt szakmai irányítására pedig egy Állandó Bizottság alakult.
A tervek kapcsán több lakossági észrevétel is érkezett, ezért a Budavári Önkormányzat nyilvános fórumot szervezett, ahol a helyiek közvetlenül is megismerkedhettek a koncepcióval, és feltehették kérdéseiket.
Az alkotás Németh Ilona Munkácsy-díjas képzőművész, egyetemi tanár tervei alapján készülne el, aki a fórumon személyesen mutatta be az elképzeléseit.
A fórumon Böröcz László polgármester, Kerpel-Fronius Gábor, Budapest korábbi főpolgármester-helyettese és Németh Ilona válaszolt a felmerülő kérdésekre.
Az eseményen részt vett Skrabski Fruzsina filmrendező, producer, a Három Királyfi, Három Királylány Alapítvány vezetője, aki az emlékmű egyik támogatója is.
Böröcz László polgármester hangsúlyozta: a projekt csak akkor valósulhat meg, ha a helyi közösség támogatja azt, ezért folytatódnak az egyeztetések. Hozzátette, hogy szükség esetén akár szavazásra is sor kerülhet a végső döntés előtt.
2026. április 29. 14:11
2026. május 31. – 10:00 Színpadi programok: 10:00 „Virágos Pünkösd” -gyermekjáték fűzés és néptánc – Brunszvik Teréz Budavári Óvodák...
Tovább olvasom
2026. április 28. 15:47
Budapest I. kerület Budavári Önkormányzat Képviselő-testületének a Budavári helyi kitüntetések alapításáról és adományozásuk rendjéről szóló 24/2025. (IX. 22.) önkormányzati rendelete...
Tovább olvasom